
Aerial view of the city’s ruin
Before Ottoman Occupation
Located in Northeastern Sudan, Suakin was a trading hub at the Red Sea connecting Africa, the middle east and even as far as India even before Ottoman occupation. Early Arabic sources from the tenth-century indicate it was a port inhabited by the local Beja people who facilitated trade in the red sea, and was also a stop for Merchants in the Indian Ocean trade(1). The role Suakin had on Red Sea trade routes, and being a resting place for foreign merchants, were the reasons why the Ottomans wanted to incorporate Suakin within their domain. Suakin until the 16th century it remained a relatively autonomous trading port for merchants while being loosely under the domain of the Mamluks’ as a vassal before the Ottoman conquest of Mamluk Egypt in the 16th century(2).

Aerial View of Suakin, circa 1960s.
Ottoman period
During the Ottoman period of Suakin it was the primary port of the Red Sea not only allowing merchants to stop here but also helped facilitate an easier path to the hajj as it was right across from the Hejaz(3). Due to the city’s commerce it brought goods from South Asia, Arabian gulf and goods especially from the african hinterlands such as gold and ivory were very profitable. Other resources from the African interior that were brought included senna and ostrich feathers from Darfur and Kordofan, leather hides from Kassala, Ethiopian Coffee, and sesame oil and cattle from local sudanese tribes (4). This gives us an idea about the economy and trade routes that occurred within this Ottoman controlled port city. Explaining why this port was significant to the Ottomans which they had include it in Ḥabeş Eyalet. Based on writings by Al-Nahrawālī , Özdemir Pasha who was the Ottoman governor of Yemen was interested in Suakin due to its prosperous trading activity and persuaded Süleyman the Magnificent to make Suakin a base of operations to help him lead a jihad against Ethiopia. Which in turn led to the founding of the Eyalet of Habeş with Suakin as the capital and Pasha as its governor in 1555 (5). While Suakin served as a port to the Ottomans, it also served as an administrative capital of the Eyalet of Habeş. And part of the reason for this was because the Ottomans were in conflict with Ethiopia formerly known as Abyssinia at the time, and having Suakin for base of operations was beneficial because Suakin was not that far from the territories of the Ethiopian empire, and having Suakin means the Ottomans can have a potential place of rest for Ottoman soldiers and resupplying the Ottoman army.

The native Beja people, the original Inhabitants of Suakin.
Relations with the Local inhabitants
What was life like for the locals in Suakin during the Ottoman period? There were relatively two phases of Ottoman control of Suakin, one being the initial control during the Sixteenth and Seventeenth century, and a second period during the Eighteenth and Nineteenth century. During Ottoman occupation, the native Beja/Ḥaḍāriba elite would of still enjoyed their autonomy that had centuries before Ottoman occupation)(6). Cultural mingling also occurred within the city as well. Many Ottomans soldiers who spent their lives there, intermarried and culturally assimilated with the locals which helped create new hybrid cultural identities(7).Based on archaeology on this city the people of Suakin would have also enjoyed foreign pottery. Evidence indicates there was trade between Egypt and even as far as Asia based on Pottery. Many pottery shards uncovered in the site are shown with a white interior and green stripes, denoting Egyptian style pottery. And two examples of pottery with blue and white decorations with irregularly blue horizontal lines indicate these shards were of Central Asia origin (8). Also demonstrating the economic prosperity this port city had.




Top: Leftmost and center are shards of South Asian Origin, Rightmost are shards of Central Asian Origin
Bottom: Shards from Egyptian style pottery (14)

Plan of Bayt Al-Basha. One of the earliest excavated buildings from the sixteenth century (15)
Housing and buildings
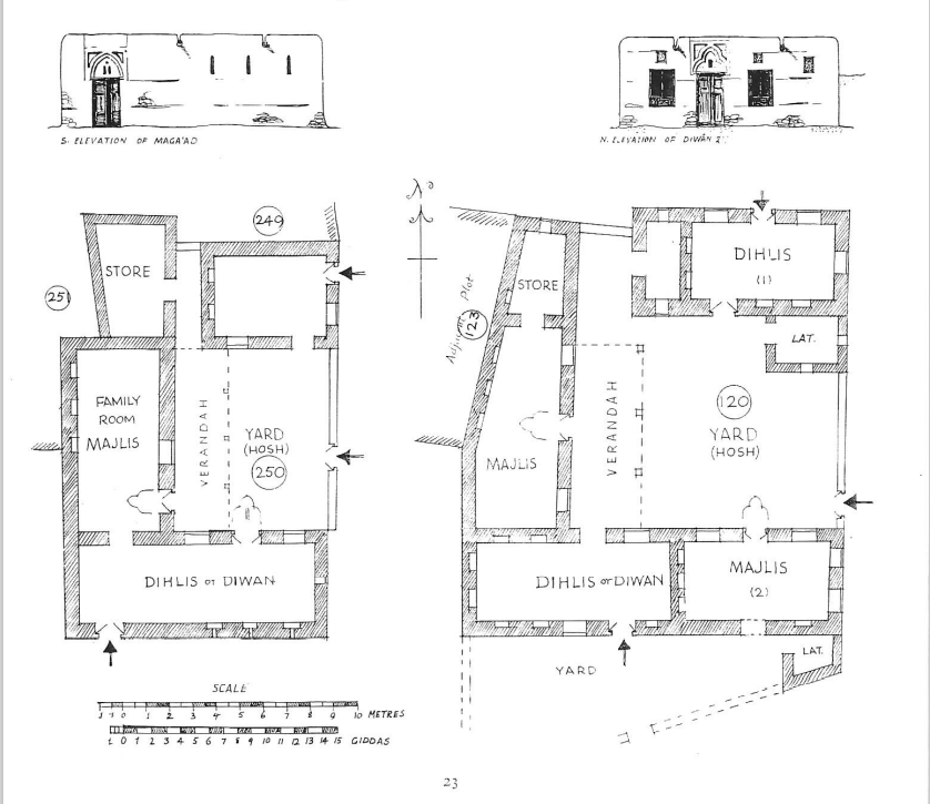
A large number of stone buildings, cemeteries and mosques dating from the Sixteenth and Seventeenth century were found on the island. Based on excavations from before the Ottoman occupation there were a few stone buildings that were surrounded by straw huts, but the amount of the buildings continued to increase after the occupation period (9). Indicating the Ottomans were building upon local architecture by adding new constructed buildings expanding the city. The average local in Suakin would have witnessed a total change in the number of buildings and new architecture that expands upon the previous within their lifetime. It is like watching the city you live in completely look unrecognizable within a couple of decades while witnessing this change.Interestingly the Ottoman buildings of Suakin are categorized in two groups, those that were built before the 1860s and those that were built after. The earlier period buildings were mostly derived from Hejazi architecture from Jeddah, and the post 1860s buildings are built in an Egyptian style with notable architectural influences from Europe. Both were built in coral, which were the local building materials used centuries before Ottoman rule (10) . The average house in Suakin was divided into two parts: on the ground floor and the top floor. The ground floor, called the Salaamlik in Turkish, was usually used for reception and entertainment of guests. The larger, top floor of the house is called the Harim, which mostly occupied the family of the home. It consisted of a bunch of suites or rooms called Majils. Each Majilis would have a smaller room joining it that was used for cooking and washing. Each suite was accompanied by each branch of the family, which normally included wife, mother-in-law, children and servants. (11).
An Egyptian style house dating to the late 19th century


Planning of houses based on excavations(16)


Left(17): Egyptian style warehouse dated in the nineteenth century
Right(18): House of Mohammed Bey Ahmed also from the nineteenth century
Suakin in 1811 came under the control of Muhammad ‘Ali, Although the Ottomans did not officially give the city to Egypt until 1865 (12). With this reconquest, more Egyptian and European style buildings were incorporated in the city compared to the traditional Turkish/Jeddah houses, forts and mosques that were built during the 16th and 17th centuries. One example of such a building was The house of Mohammed Bey Ahmed. Which was a square European style townhouse with rooms in all four corners of it and a central hall through the roof. It contained light lanterns on the ceiling and wooden staircases that led to the first floor similar to European housing (13). This exemplifies a complete change compared to the initial Ottoman control of the city in the Sixteenth and Seventeenth century. During Muhammad Ali’s rule, they use a completely new architectural style that encompasses Egyptian and European architecture to residential buildings. Creating more square buildings with increased woodworks and more storeys.
Notes:
- (Peacock, “Suakin: A Northeast African Port in the Ottoman Empire”, 30)
- (Peacock , “Suakin: A Northeast African Port in the Ottoman Empire”, (31)
- (Mallison, “Ottoman Suakin 1541 – 1865: Lost & Found”, 483)
- (Mallison,484)
- (Peacock, Suakin: A Northeast African Port in the Ottoman Empire” ,34)
- (Peacock , “Suakin: A Northeast African Port in the Ottoman Empire”, (36)
- (Peacock, 39)
- (Mallison, 486)
- (Mallison, 476)
- (Greenlaw, , “The Coral buildings of Suakin”, 22)
- (Greenlaw “The Coral Buildings of Suakin”,17)
- (Peacock, “Suakin: A Northeast African Port in the Ottoman Empire”, 43)
- (Greenlaw, 80)
- (Mallison, 487-488)
- (Mallison, 480)
- (Greenlaw, , “The Coral buildings of Suakin”, 22)
- (Greenlaw “The Coral Buildings of Suakin”,76)
- (Greenlaw “The Coral Buildings of Suakin”,80)
Citations:
Mallinson,Micheal et al. “Ottoman Suakin 1541 – 1865: Lost & Found”,in A. Peacock, ed., The Frontiers of the Ottoman World. (2009): 470-492.
Peacock, A. C. S. 2012. “Suakin: A Northeast African Port in the Ottoman Empire.” Northeast African Studies 12 (1): 29–50. https://www.jstor.org/stable/41960557#metadata_info_tab_contents.
Greenlaw, Jean-Pierre. 1995. The Coral Buildings of Suakin: (Text and Illustrations) by Jean-Pierre Greenlaw (Routledge) 8-103.
Peacock, A.C.S. 2012. “The Ottomans and the Funj Sultanate in the Sixteenth and Seventeenth Centuries.” Bulletin of the School of Oriental and African Studies, University of London 75 (1): 87–111. https://www.jstor.org/stable/23258896#metadata_info_tab_contents.
Bloss, J. F. E. 1936. “THE STORY of SUAKIN.” Sudan Notes and Records 19 (2): 271–300. https://www.jstor.org/stable/41716223#metadata_info_tab_contents.
